Kongsgård Park - H0205
Kongsgård Park | Nyere og meget pen 3-roms selveierleilighet på Lund | Solrik, innglasset balkong | 2 soverom og 2 bad
Om boligen
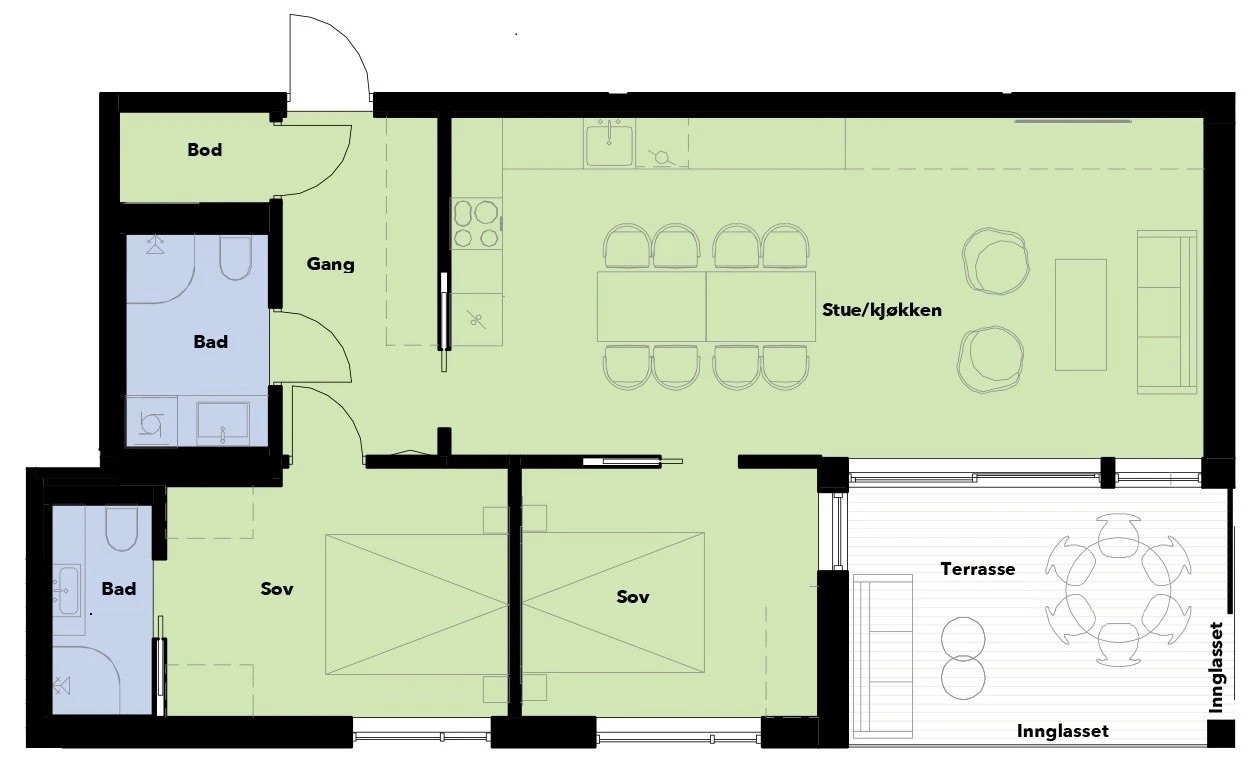
Velkommen til Bispegra 6, en meget pen og gjennomført selveierleilighet i bygg oppført i 2022.
Her bor du i attraktive Kongsgård Park, idyllisk beliggende ved Prestebekken og omgitt av flotte grøntområder, med kort vei til butikker, skole, idrettsanlegg, buss og sentrum. Leiligheten ligger i 2. etasje og har lys stue med åpen kjøkkenløsning fra Strai med integrerte hvitevarer, samt utgang til solrik, innglasset balkong med accoya-gulv. Hovedsoverom med eget bad, ekstra soverom, bad/vaskerom og bod. Gjennomgående god standard med enstavs parkett, flislagte bad, vannbåren gulvvarme og balansert ventilasjon.
Sportsbod i kjeller medfølger. Sameiet byr på vakre fellesområder, vaskeplass for biler i parkeringskjelleren, orangeri, hobbyrom, samt lokaler som kan leies til selskaper.
Se FINN-annonse - klikk HER!
Lånekalkulator
Få et raskt estimat på hva boliglånet ditt kan koste hver måned.
Er du interessert?
Fyll ut skjema og meld interesse, så kontakter vi deg for en uforpliktende boligprat!





























